Introdução
A montagem de torres metálicas de telecomunicações é uma operação complexa que exige planejamento meticuloso, equipamentos especializados e rigorosos protocolos de segurança. Entre as ferramentas cruciais que otimizam esse processo, destaca-se o Módulo Auxiliar de Montagem, popularmente conhecido como “Pau de Carga”. Este artigo explora o histórico, a evolução e as instruções detalhadas para a utilização segura e eficiente deste equipamento fundamental na construção de infraestruturas de telecomunicações.
Histórico e Evolução da Montagem de Torres
A construção de torres de telecomunicações, desde as primeiras estruturas para rádio e televisão até as modernas torres para redes 5G, sempre representou um desafio de engenharia. Inicialmente, a montagem de estruturas metálicas de grande porte dependia fortemente de métodos manuais e equipamentos rudimentares, como guinchos operados por força humana ou animal, e o uso de andaimes complexos. A elevação de seções pesadas era um processo lento, perigoso e ineficiente, demandando um grande número de trabalhadores e expondo-os a riscos consideráveis.
Com o avanço da engenharia e a crescente demanda por infraestruturas de comunicação, surgiu a necessidade de otimizar os processos de montagem. A introdução de guindastes e gruas revolucionou a construção civil, permitindo o içamento de cargas muito maiores com maior precisão e segurança. No entanto, para a montagem de torres autoportantes e estaiadas, especialmente em locais de difícil acesso ou com espaço limitado para grandes equipamentos, uma solução mais adaptável era necessária. Foi nesse contexto que o conceito do “Pau de Carga” começou a se desenvolver.
O “Pau de Carga”, em sua forma mais básica, é um mastro auxiliar que se estende acima da seção da torre que está sendo montada, permitindo o içamento dos próximos módulos a partir de um ponto mais elevado. Sua evolução está intrinsecamente ligada à busca por maior autonomia e eficiência na montagem, reduzindo a dependência de guindastes externos e permitindo que a própria torre em construção sirva como parte do sistema de içamento.
Documentos históricos e manuais de engenharia civil indicam que a ideia de utilizar um mastro auxiliar para içamento de cargas é antiga, remontando a técnicas empregadas na construção naval e de grandes estruturas antes mesmo da era das telecomunicações.
No contexto das torres de telecomunicações, o “Pau de Carga” tornou-se uma ferramenta indispensável. Ele permite a montagem progressiva da torre, módulo por módulo, com o equipamento sendo realocado para o topo da seção recém-instalada. Isso é particularmente vantajoso para torres muito altas, onde o custo e a logística de um guindaste de grande porte seriam proibitivos.
A simplicidade e a eficácia do “Pau de Carga” garantiram sua permanência e evolução, com o desenvolvimento de modelos mais robustos, leves e com sistemas de fixação aprimorados, adaptados às crescentes demandas de segurança e eficiência da indústria de telecomunicações.

O que é o Módulo Auxiliar de Montagem (Pau de Carga)?
O Módulo Auxiliar de Montagem, ou “Pau de Carga”, é um equipamento portátil e versátil, projetado para auxiliar no içamento e posicionamento de módulos e componentes durante a montagem de torres metálicas. Essencialmente, ele atua como um braço extensor temporário, permitindo que as cargas sejam elevadas acima do ponto de montagem atual da torre. Sua principal vantagem reside na capacidade de ser montado e desmontado em seções, facilitando o transporte e a adaptação a diferentes alturas de torre.
Componentes Principais
Um “Pau de Carga” típico é composto por:
- Mastro Principal: A estrutura vertical que se estende acima da torre, geralmente feita de aço galvanizado ou alumínio para combinar resistência e leveza. O comprimento do mastro varia, mas é comum encontrar modelos de 6 a 15 metros, adaptados ao tamanho dos módulos da torre a serem içados.
- Roldana (Polia): Localizada na extremidade superior do mastro, por onde passa o cabo de aço do guincho. A roldana garante um movimento suave e direcionado da carga.
- Sistema de Fixação: Mecanismos que permitem fixar o “Pau de Carga” de forma segura à estrutura da torre. Isso pode incluir abraçadeiras, parafusos ou outros dispositivos de ancoragem que garantam a estabilidade do mastro durante as operações de içamento.
- Guincho: Embora não seja parte integrante do “Pau de Carga” em si, o guincho (geralmente elétrico) é um componente essencial do sistema de içamento. Ele é posicionado no solo, a uma distância segura da torre, e seu cabo é passado pela roldana do “Pau de Carga” para elevar os módulos. A distância do guincho em relação à torre é crucial para garantir a visibilidade do operador durante o içamento.
Tipos de Pau de Carga
A escolha do tipo de “Pau de Carga” depende das características da torre, das condições do local e dos requisitos específicos do projeto de montagem. Independentemente do tipo, a correta instalação e o uso seguro são primordiais para evitar acidentes e garantir a integridade da estrutura e da equipe de trabalho.
Podem ser utilizadas diversas configurações de Pau de Carga, cada uma com características específicas de comprimento, peso e capacidade de carga, adaptadas a diferentes necessidades de montagem de torres. Abaixo, uma visão geral dos modelos utilizados pela CAW:
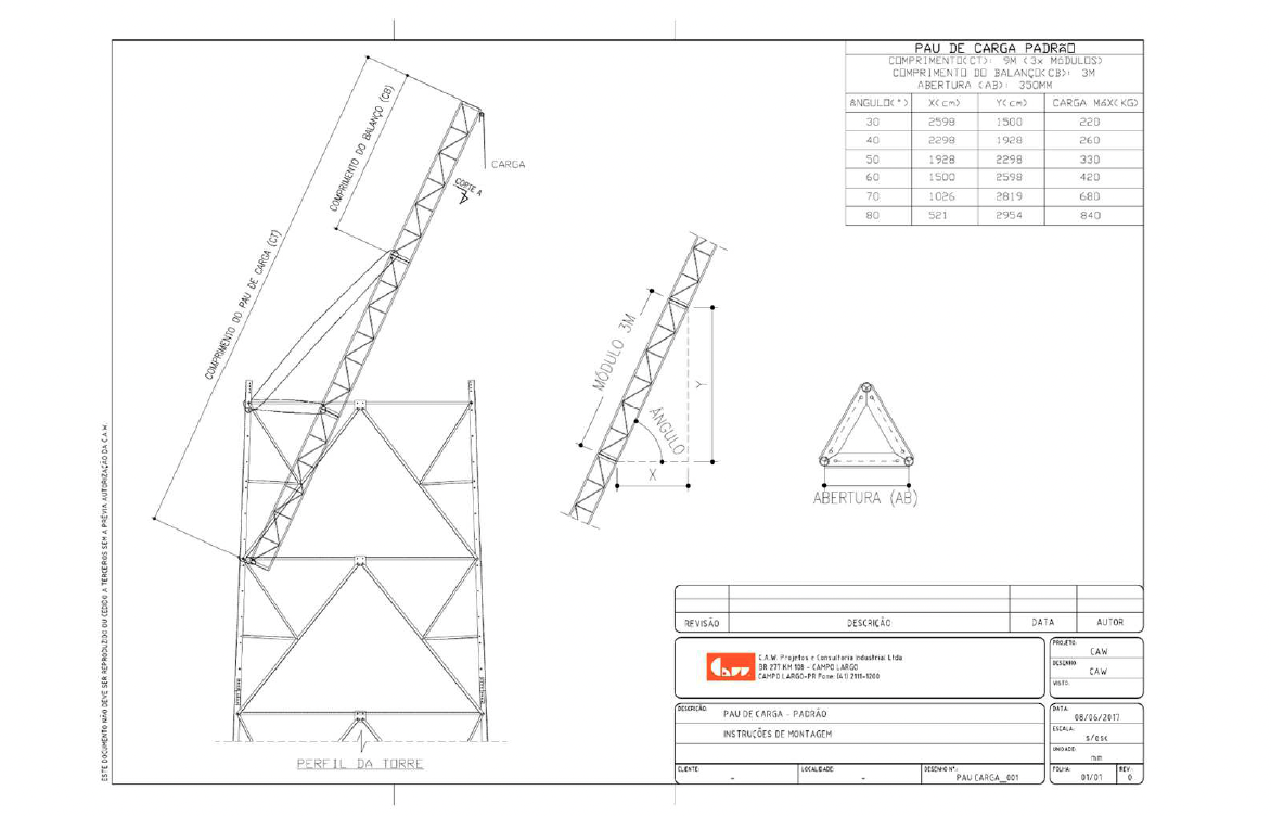
Pau de Carga Padrão (9m e 12m)
Estes modelos são treliçados, com módulos de 3m de comprimento. O modelo de 9M (3 módulos) possui um peso próprio de 110 kg e uma abertura de 350mm. O modelo de 12m (4 módulos) tem um peso próprio de 146.8 kg e a mesma abertura de 350mm. A capacidade de carga varia conforme o ângulo de içamento.

Pau de Carga Reforçado (PC-01, PC-02, PC-03 e 15M)
Estes modelos são projetados para suportar cargas maiores. Os modelos PC-01, PC-02 e PC-03 são treliçados com módulos de 3m e abertura de 375mm. O PC-01 (3 módulos) pesa 110 kg, enquanto o PC-02 e PC-03 (4 módulos) pesam 230 kg. O modelo reforçado de 15M (5 módulos) também possui 375mm de abertura e um peso próprio de 287.5 kg.
Pau de Carga (Pluma)
Um tipo específico de pau de carga treliçado com abertura de 200mm e módulo de 5.4m de comprimento, utilizado para içamento de peças. O modelo de 10.85m (2 módulos) tem um peso próprio de 200 kg e uma capacidade de carga de 750 kgf a 85° de ângulo.
Essas variações demonstram a adaptabilidade do Pau de Carga para atender a diferentes requisitos de projeto e condições de campo, sempre com base em cálculos estruturais rigorosos e normas de segurança.

Instruções de Uso e Procedimentos de Segurança
A utilização do Módulo Auxiliar de Montagem (Pau de Carga) requer aderência estrita a procedimentos operacionais e de segurança para garantir a integridade da estrutura, dos equipamentos e, principalmente, da equipe de trabalho. A seguir, são detalhadas as etapas e as precauções essenciais para a montagem de torres metálicas utilizando este equipamento.
Planejamento e Preparação
Antes de iniciar qualquer operação de montagem, um planejamento detalhado é indispensável. Isso inclui:
- Análise do Local: Avaliar as condições do terreno, acesso, presença de obstáculos (linhas de energia, árvores, etc.) e condições climáticas. Ventos fortes, chuvas e descargas elétricas são fatores que podem inviabilizar ou interromper a montagem.
- Dimensionamento do Equipamento: Garantir que o “Pau de Carga” e o guincho sejam adequados para o peso e as dimensões dos módulos da torre a serem içados. As especificações técnicas do “Pau de Carga” devem ser rigorosamente seguidas, incluindo sua capacidade de carga e os pontos de ancoragem.
- Equipe Qualificada: A equipe de montagem deve ser composta por profissionais treinados, cerificados e qualificados, com experiência em trabalho em altura e operação de equipamentos de içamento. É fundamental que todos compreendam suas funções e os procedimentos de emergência.
- Equipamentos de Proteção Individual (EPIs): Todos os trabalhadores devem utilizar EPIs adequados, como capacetes, cintos de segurança tipo paraquedista, talabartes, luvas, óculos de segurança e calçados de segurança.
- Equipamentos de Proteção Individual (EPCs): Todos os trabalhadores devem utilizar EPCs adequados como linhas de vida instaladas adequadamente para garantir a segurança durante a escalada e descida da estrutura.
- Plano de Içamento: Elaborar um plano de içamento que detalhe a sequência de montagem, os pontos de içamento, os cabos e acessórios a serem utilizados, e as rotas de movimentação da carga. O plano deve prever situações de emergência e resgate.
Montagem do Pau de Carga e Içamento dos Módulos
O processo de montagem da torre com o “Pau de Carga” segue uma sequência lógica:
- Fixação do Primeiro Módulo: O primeiro módulo da torre é posicionado manualmente e fixado à fundação. Este módulo serve de base para a instalação do “Pau de Carga”.
- Instalação do Pau de Carga: O “Pau de Carga” é fixado ao topo do módulo recém-instalado, com sua extremidade superior (onde está a roldana) projetada para fora da torre. É crucial que a fixação seja extremamente segura para suportar as cargas de içamento.
- Posicionamento do Guincho: O guincho elétrico é posicionado no solo, a uma distância segura da torre, garantindo a visibilidade do operador e a estabilidade do equipamento.
- Passagem do Cabo: O cabo de aço do guincho é passado pela roldana do “Pau de Carga” e conectado ao módulo da torre a ser içado. A amarração da carga deve ser feita de forma segura.
- Içamento e Posicionamento: O módulo é içado lentamente, com a equipe no solo e na torre coordenando a operação. Uma vez que o módulo atinge a altura desejada, ele é guiado e posicionado sobre a seção inferior da torre. A fixação dos módulos é feita por meio de parafusos e porcas.
- Realocação do Pau de Carga: Ela é realizada com a elevação do conjunto completo, amarrando a ponta do cabo na base do pau de carga, elevando em seguida o conjunto de forma manual ou com o guincho até o topo do módulo recém-instalado, repetindo o processo até que a torre atinja a altura final.


Precauções de Segurança Essenciais
- Proibição de Içamento de Pessoas: É terminantemente proibido o içamento de pessoas utilizando o “Pau de Carga” ou qualquer outro equipamento de içamento de cargas.
- Sinalização da Área: A área de montagem deve ser isolada e sinalizada para evitar o acesso de pessoas não autorizadas.
- Inspeção Diária: Todos os equipamentos (Pau de Carga, guincho, cabos, EPIs) devem ser inspecionados diariamente antes do início das operações para identificar e corrigir qualquer dano ou desgaste.
- Comunicação Clara: Manter uma comunicação clara e constante entre todos os membros da equipe, utilizando rádios ou sinais padronizados.
- Condições Climáticas: Interromper imediatamente as operações em caso de ventos fortes, tempestades, raios ou qualquer condição climática adversa que possa comprometer a segurança.
- Capacitação e Treinamento: A capacitação contínua da equipe é fundamental para a prevenção de acidentes e aprimoramento das técnicas de montagem.
Conclusão
O Módulo Auxiliar de Montagem, ou “Pau de Carga”, é uma ferramenta de valor inestimável na indústria de telecomunicações, desempenhando um papel crucial na montagem eficiente e segura de torres metálicas. Sua adaptabilidade, combinada com a capacidade de operar em locais desafiadores, o torna uma alternativa viável e, em muitos casos, superior a guindastes de grande porte.
No entanto, a eficácia e a segurança do “Pau de Carga” dependem diretamente do planejamento rigoroso, da utilização de equipamentos adequados e, acima de tudo, da capacitação e do comprometimento da equipe de montagem.
A adesão estrita às normas de segurança e a constante atualização dos procedimentos operacionais são essenciais para garantir que a construção de infraestruturas de telecomunicações continue a ser um processo seguro e produtivo, impulsionando a conectividade em todo o mundo.












